Пост подготовки к окраске с диагональным потоком воздуха WDK410M
- По России: БЕСПЛАТНО до терминала отправления ТК (*далее по тарифам ТК) RUB
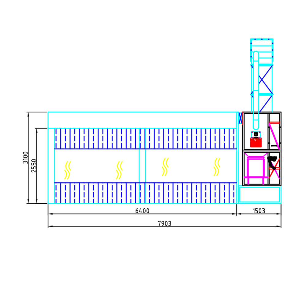
Пост подготовки к окраске WDK410M предназначен для создания требуемых технологических условий при проведении подготовительных работ к окраске. По всей площади пленума установлены фильтры тонкой очистки. В комплект входят шторы для изоляции рабочей зоны от основного помещения.
Пост подготовки оборудован приточным двигателем с центробежным вентилятором (5.5 кВт) и вытяжным двигателем с центробежным вентилятором (4 кВт). Приточно-вытяжная группа работает в трех режимах (продувка, окраска, сушка). Переключение между режимами осуществляется при помощи заслонки с пневматическим приводом.
Система нагрева состоит из горелки и теплообменника из нержавеющей стали. В стандартную комплектацию поста подготовки входит дизельная горелка фирмы Riello 40F20 тепловой мощностью 202 кВт.
Пульт управления располагается на внешней поверхности стены, отделяющей приточно-вытяжную группу от помещения рабочей зоны поста. Опционально возможно его расположение в любом удобном месте.
Особенности и преимущества:
- Не требует бетонных работ.
- Диагональный воздушный поток.
- Подготовка поверхности, нанесение и сушка грунтов.
- Шторы с прозрачной вставкой.
- Счётчик моточасов для определения наступления периода обслуживания камеры.
- Таймер сушки, позволяющий настроить время сушки.
- Лампы-индикаторы, информирующие о работе поста подготовки.
- Кнопки запуска и остановки работы поста подготовки.
- ПИД-регулятор для настройки и отображения текущей температуры внутри рабочей зоны поста.
Германия -
родина бренда
Китай -
страна производитель
