Уважаемые клиенты! В настоящий момент мы НЕ ПРИНИМАЕМ ЗАКАЗЫ через корзину. Приносим свои извинения.

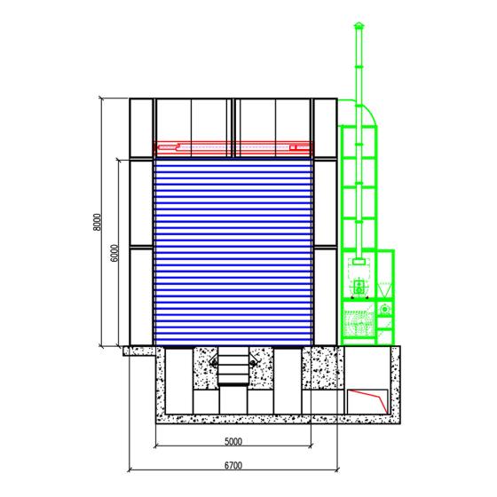
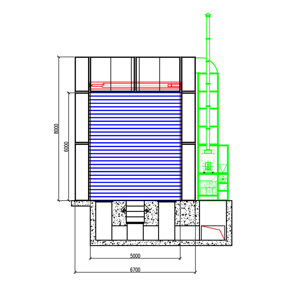
Окрасочно-сушильная камера WDK-3010

Нет в наличии
Окрасочно-сушильная камера WDK-3010
Окрасочно-сушильная камера WDK-3010
Код товара: 460.069488
Цена по запросу